Продаётся дом 136 м2 на участке 6 сот. в 80 км от МКАД в посёлке «Атеевка-парк»
| Номер объявления: | 29 Обновлено: 02.02.2015 в 12:37 |
| Цена: | 3 100 000 руб. |
| Характеристики объекта | |
| Удалённость от МКАД: | 80 км смотреть на карте |
| Готовность: | Построен |
| Количество надземных этажей: | 2 |
| Площадь объекта: | 136 м2 |
| Площадь участка: | 6 сот. |
| Категория земель: | Земли населённых пунктов |
| Рынок: | Первичный |
| Гараж: | нет |
| Электричество: | есть |
| Водопровод: | есть |
| Газ: | нет |
| Центральная канализация: | нет |
| Отопление: | нет |
| КПП с охраной: | нет |
| Проводной телефон: | нет |
| Проводной интернет: | нет |
| Лес в окрестностях: | есть |
| Водоём в окрестностях: | нет |
| Отделка под ключ: | нет |
| Подряд: | нет |
| Контактные данные | |
Дом в коттеджном поселке «Атеевка Парк»
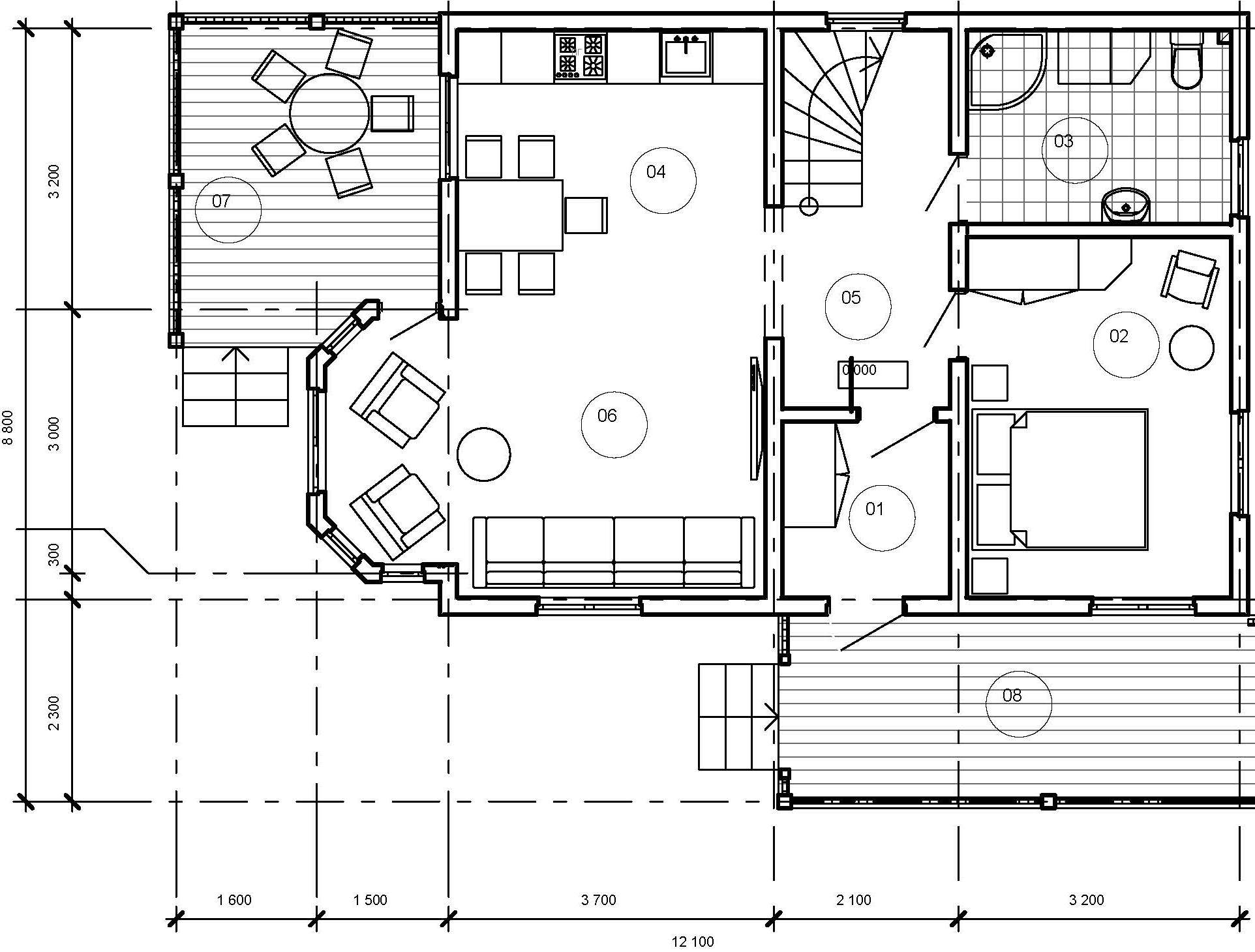
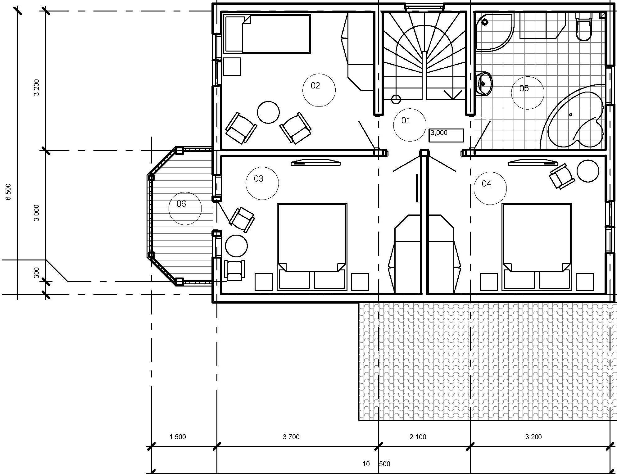
Одноэтажный жилой дом с мансардным этажом. Самый большой и яркий дом этой серии. В этом доме мы совместили все то, что хотели бы иметь в своем загородном доме. Просторная веранда, выход из кухни на открытое патио, эркер в гостиной.
Общая площадь 136 кв.м. Площади 1 этажа: Прихожая 3.80 кв.м. Спальня 12.3 кв.м. с/у 6.6 кв.м. Кухня 9.36 кв.м. Холл 8.17 кв.м. Гостиная 17.14 кв.м. украшена эркером с низким остеклением. Терраса 11.11 кв.м. Терраса 13.53 кв.м. Площади 2 этажа: Холл 2.19 кв.м. Спальня 11.03 кв.м. Спальня 14.41 кв.м. имеет выход на балкон. Спальня 12.84 кв.м. с/у 9.45 кв.м. Балкон 4.37 кв.м. Итого жилая площадь: 67.72 кв.м.
Фундамент: 0,7х0,25 (мелкозаглубленная армированная фундаментная лента, единая под домом и верандой с подсыпкой песка на геотекстиль под ленту).
Каркас дома: доска естественной влажности 150х50, перегородки несущие из доски естественной влажности 150х50, обвязка первого этажа из доски естественной влажности 150х50, балки перекрытий первого и второго этажа - из доски естественной влажности 200х50, несущая внутренняя обшивка плитами OSB3 9 мм.
Кровля: металлочерепица с полимерным покрытием Grand line, утепление 150 мм. минеральной ватой Paroc.
Утепление внешних стен – 150 мм. Paroc с использованием паро и гидроизоляции.
Отделка: наружные стены – сайдинг Doke по деревянной обрешетке 30х50 мм., внутренняя отделка всех помещений – евровагонка, потолок–евровагонка, полы первого и второго этажа дома- фанера 21 мм., пол веранды и крылец – доска пола сосна.
Окна: двухкамерный пластиковый стеклопакет Rehau Blitz , москитные сетки на откидных окнах. Металлическая входная дверь.
Участок 6 соток.
Срок постройки около 2 мес.